Casa di corte in vendita

Lonate Pozzolo, Via Matteotti
€ 69.000
2 locali 2 locali
80 Mq 80 Mq
1 bagno 1 bagno

Casa di corte in vendita

Lonate Pozzolo, Via Matteotti

Descrizione annuncio

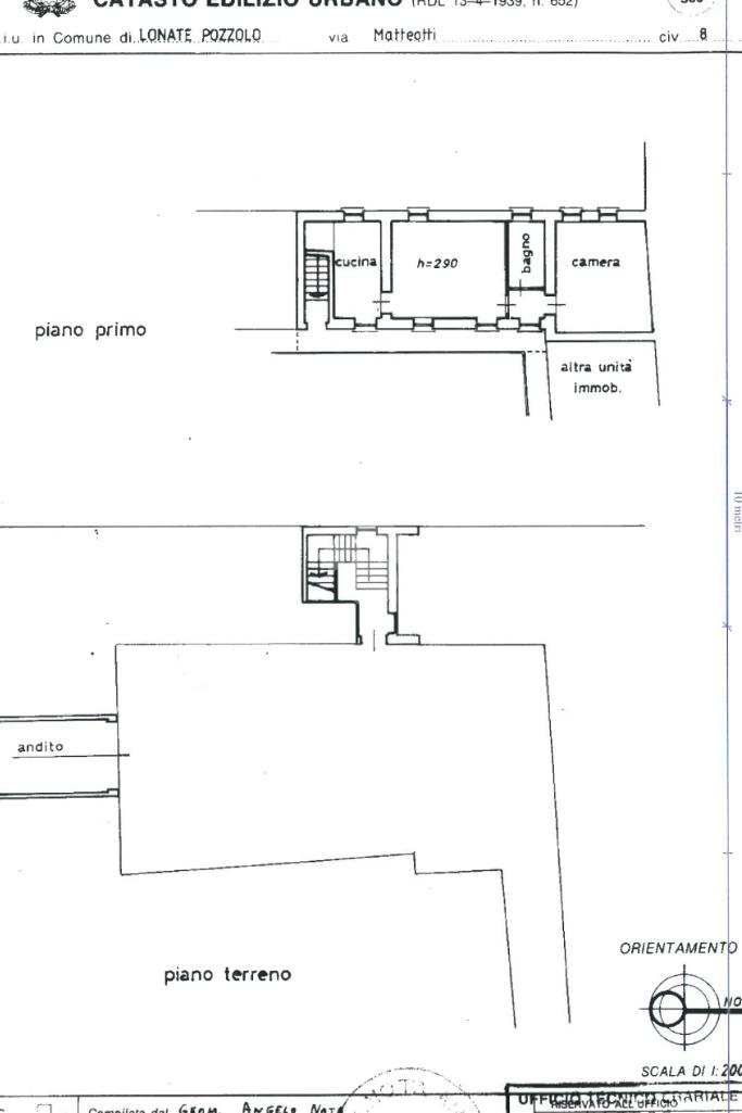
LONATE POZZOLO. Nel suggestivo centro storico, all’interno di una corte curata e riservata, bilocale al primo piano ideale per chi desidera vivere in un contesto tranquillo ma comodo a tutti i servizi, ottimo anche a fini di investimento.

L’appartamento si distingue per gli spazi ben distribuiti e la grande luminosità, grazie alla doppia esposizione e all’affaccio sull’area interna della corte, che conferisce quiete e privacy.

La soluzione si compone di ingresso su ampio soggiorno cucina semiabitabile, comoda e funzionale. Camera matrimoniale generosa negli spazi, bagno finestrato dotato di vasca.

L’immobile si presenta in buono stato manutentivo ed è inserito in un contesto ordinato, con spazi ben organizzati, a pochi passi da negozi, servizi e trasporti.

Completa la proposta: possibilità di acquistare box auto al prezzo di €15.000, una soluzione comoda per chi cerca praticità e sicurezza.

Mostra tutto

Nelle vicinanze

Trasporto pubblico Trasporto pubblico
Ferno-Lonate Pozzolo
Ferno-Lonate Pozzolo
1,3 Km
Scuole Scuole
Scuola Primaria Alessandro Volta
350 m
Scuola Primaria Dante
440 m
Scuola Secondaria di primo grado C. Carminati
490 m
Scuola Primaria Brusatori
1,3 Km
Scuola Secondaria di Primo Grado Benedetto Croce
1,6 Km
Farmacia Farmacia
Antica Farmacia Lonate
310 m
Farmacia
2,9 Km
Supermercati Supermercati
Il Gigante
1,5 Km
Tigros
2,6 Km
Bar Bar
Il Ritrovo
80 m
Impero
250 m
Bar Sport
3,0 Km
Ristoranti Ristoranti
Agriturismo Valticino
1,4 Km
Butterfly
2,7 Km
Trattoria da Lucia
2,8 Km
Mostra tutto

Caratteristiche

Rif.:
61049608
Piano:
1 di 2 (Piano medio)
Balconi:
1
Camere da letto:
1
Arredamento:
Parziale
Condizionamento:
Assente
Mostra tutto
Prezzo Prezzo
€ 69.000
Prezzo box Prezzo box
€ 15.000
Rata mutuo Rata mutuo
€ 326 / mese
Proponi il tuo prezzoProponi il tuo prezzo

Classe Energetica

G
G
G
G
G
G
G
G
G
EP invernale del fabbricato:
EP estiva del fabbricato:
Anno di costruzione:
1957
Riscaldamento:
Autonomo
Tipo impianto:
A radiatori
Tipo alimentazione:
Metano

Ti interessa visionare l'immobile?

Fissa un appuntamento  Fissa un appuntamento

Richiedi informazioni

Clicca su Leggi per aprire l'informativa
* Questi campi sono obbligatori

Calcola il tuo mutuo

Semplice e senza impegno
Anticipo

( % )
Mutuo

( % )

pochi semplici passi

inserisci i tuoi dati
Questionario completato
Grazie per aver richiesto un appuntamento senza impegno con un nostro Consulente del Credito e Assicurativo.

Hai inserito correttamente tutti i dati necessari e a breve riceverai una e-mail con un link da convalidare per inviare i tuoi dati.
Affiliato
Agenzia Immobiliare Ideadue Sas
Via Cavour, 8 21015 Lonate Pozzolo (VA)

Il nostro staff


  • Manuel Ardenghi
    Affiliato

  • Roberta Ceraso
    Coordinatrice
Via Cavour, 8 21015 Lonate Pozzolo (VA)
Zona: Lonate Pozzolo - Ferno - Malpensa
Mostra su mappa
Orari: dal lunedì al venerdì dalle 9.00 - 12.30 e 15.00 - 19.30; sabato dalle 9:00 - 12:30 e pomeriggio su appuntamenti
Affiliato
Agenzia Immobiliare Ideadue Sas
Via Cavour, 8 21015 Lonate Pozzolo (VA)

2025 Tecnocasa Franchising S.p.A. - P. IVA 08365160152 - Via Monte Bianco 60/A 20089 Rozzano (MI). Ogni agenzia ha un proprio titolare ed è autonoma. Privacy policy | Policy utilizzo | Cookie policy